0
Skip to Content
JADEN FLINT
About
Contact
Open Menu
Close Menu
JADEN FLINT
About
Contact
Open Menu
Close Menu
About
Contact
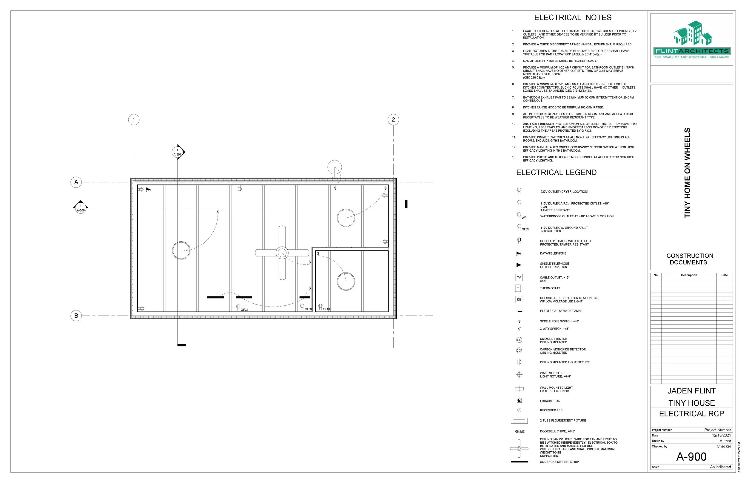
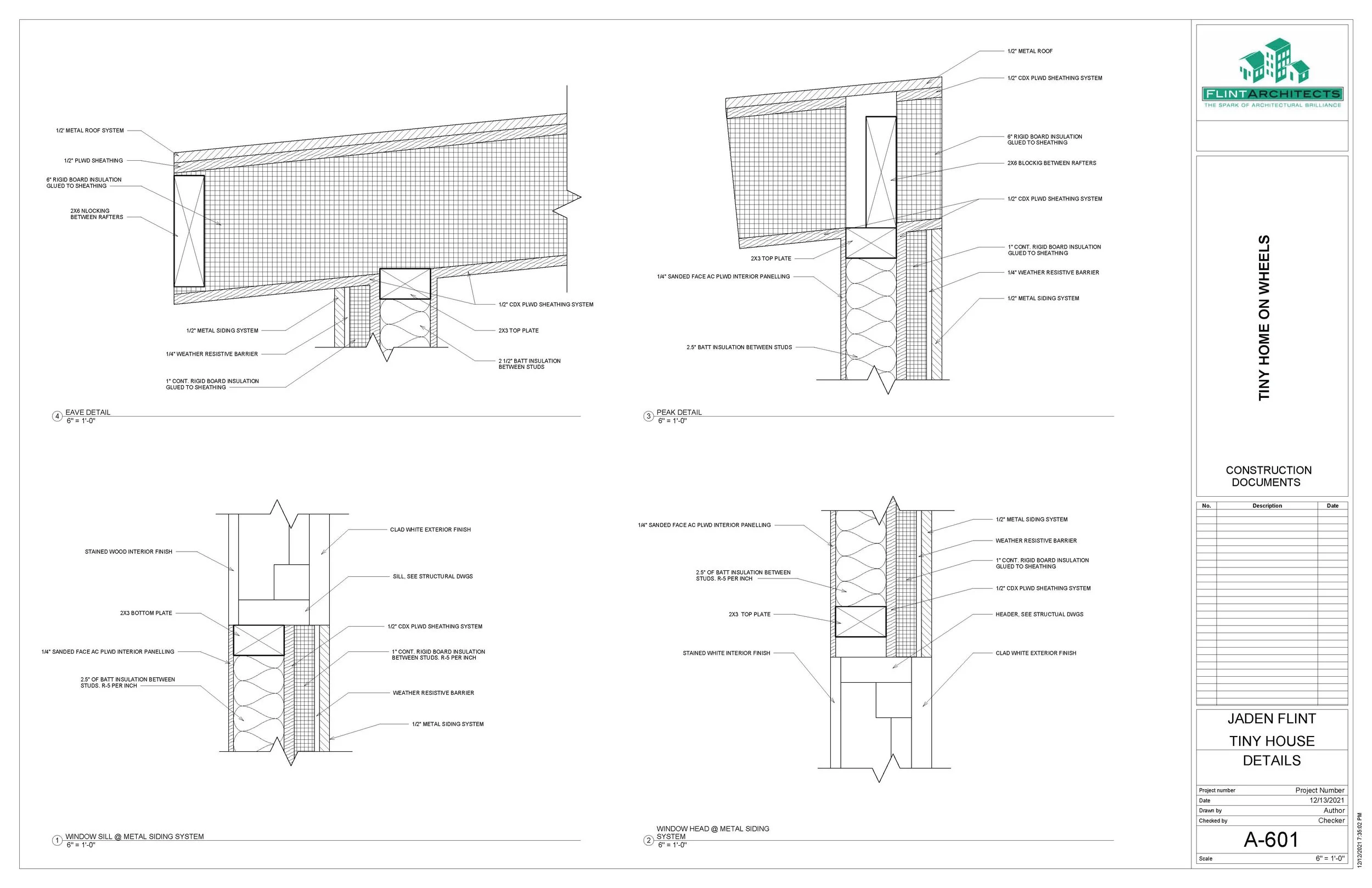
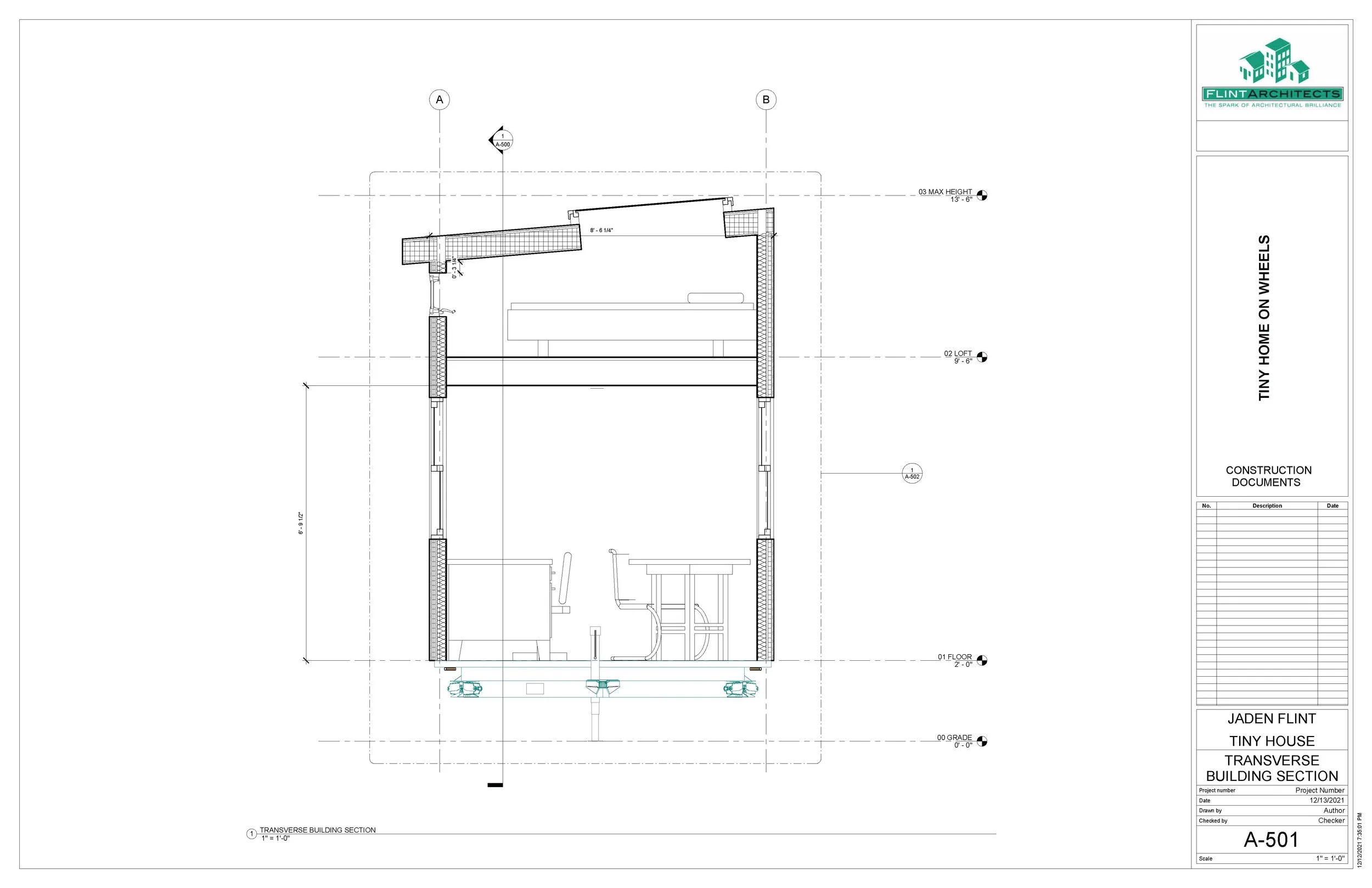
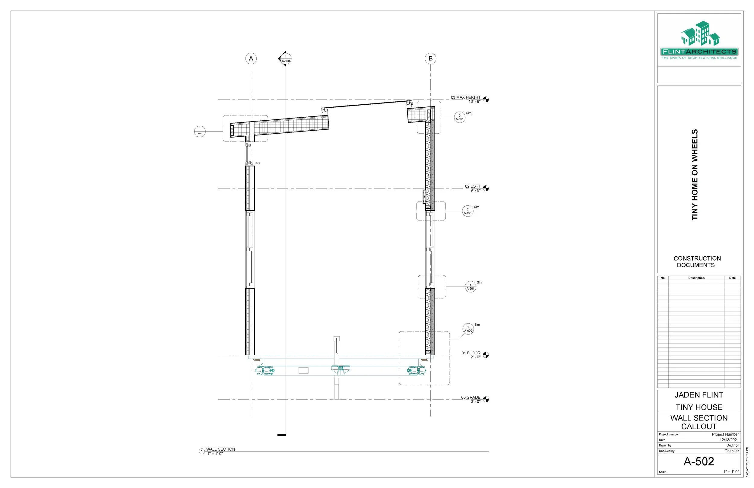
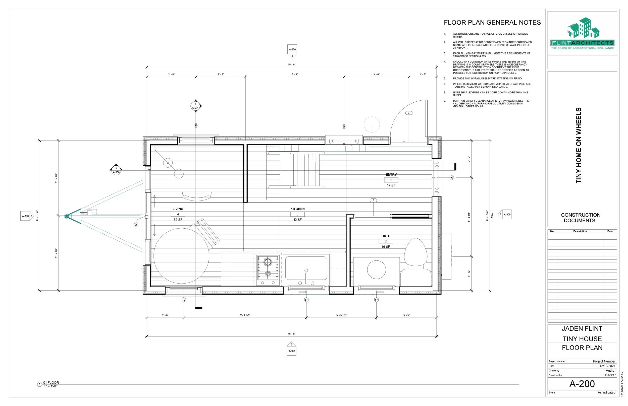
TINY HOME ON WHEELS
Full construction documentation for a 16’ trailer.
Previous
Previous
Soil Born Farms
Next
Next
DESIGN VILLAGE (ETERNAL)